• Alquiler Apartamento Monoambiente La Blanqueada

Apartamento

La Blanqueada , Montevideo

Alquiler $ 23.000

  • Monoambiente

  • 1

    Baños

  • Sup.

    43 m2

En Alquiler

ID de la propiedad : 6027

Barrio La Blanqueada, Calle Antonio Acosta Y Lara, Esquina Juan A. Guzman
Ubicado a , en zona con servicios y locomoción disponible
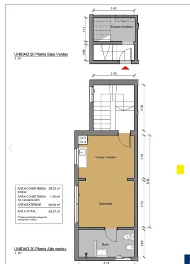
Hermoso Apartamento tipo Monoambiente al frente en primer piso por escalera en edificio seguro

. Habitación amplio y funcional, muy luminosa
. Cocina integrada con placares
. Baño completo
. Box en planta baja de uso exclusivo

Superficie Total: 43m2
Precio: $23.000
Gastos Comunes: $1.800
Garantías: Anda, CGN o seguros
Acepta Mascotas, solo gatos

Para coordinar visita por esta o mas propiedades no dude en comunicarse, podemos ayudarle a encontrar lo que está buscando

Características

  • Barrio  La Blanqueada
  • Orientacion  Sur
  • Total m2  43
  • Propios m2  43
  • Baños  1
  • Cocina  Integrada
  • Dep. Servicio  No
  • Baño Servicio  No
  • Estufa Leña  No
  • Cochera  No
  • Parrillero  No

Video

 Alquiler Apartamento Monoambiente La Blanqueada

Ubicación

Antonio Acosta Y Lara Y Juan A. Guzman, La Blanqueada , Montevideo

Solicita mas información

Contacto